Il progetto in descrizione prevede la realizzazione di un nuovo edificio destinato a negozio, laboratorio, autorimessa e servizi correlati.
Questa struttura sostituirà una porzione di fabbricato gravemente danneggiata e irreparabilmente colpita dagli eventi sismici di maggio 2012, la quale è stata demolita poco dopo il terremoto.
Una parte di tale edificio è stato costruito fra la fine degli anni ’60 e l’inizio dei ’70 a seguito del rilascio delle specifiche Licenze di Costruzione e della conclusiva Autorizzazione di Agibilità. Invece, la restante parte è stata costruita agli inizi degli anni ’90.

Il progetto è caratterizzato dall’utilizzo di quattro materiali chiave: Legno, ferro, pietra e vetro.







L’intervento ha previsto la ricostruzione delle porzioni di fabbricato demoliti in un unico nuovo edificio, adiacente ma visibilmente “staccato” dalla porzione di edificio che è rimasta in essere.
Ciò al fine di creare un vero “giunto strutturale”, in modo tale che il nuovo edificio non vada ad interagire anche a livello fondale con le strutture esistenti, ed agevolarne la costruzione; ma soprattutto un “giunto architettonico” che separi nettamente i due edifici: quello esistente costruito con forme, tecniche e materiali che potremmo definire “tipici dell’epoca di realizzazione”, da quello nuovo in Progetto, caratterizzato da un linguaggio contemporaneo, prevedendo una struttura comunque molto più funzionale di quella precedente e contestualmente flessibile.

Il nuovo fabbricato è stato realizzato con una struttura portante “a telaio” in legno e tamponamenti in materiali isolanti che garantiscano alto comfort e bassissimo impatto ambientale, per questo si è ricorso alla prefabbricazione in legno, che ha consentito il rispetto della tempistica correlata al contributo, alla precisione esecutiva, alla realizzazione della caratteristica forma.
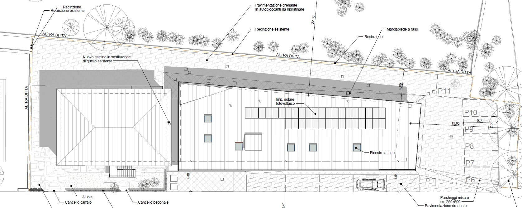
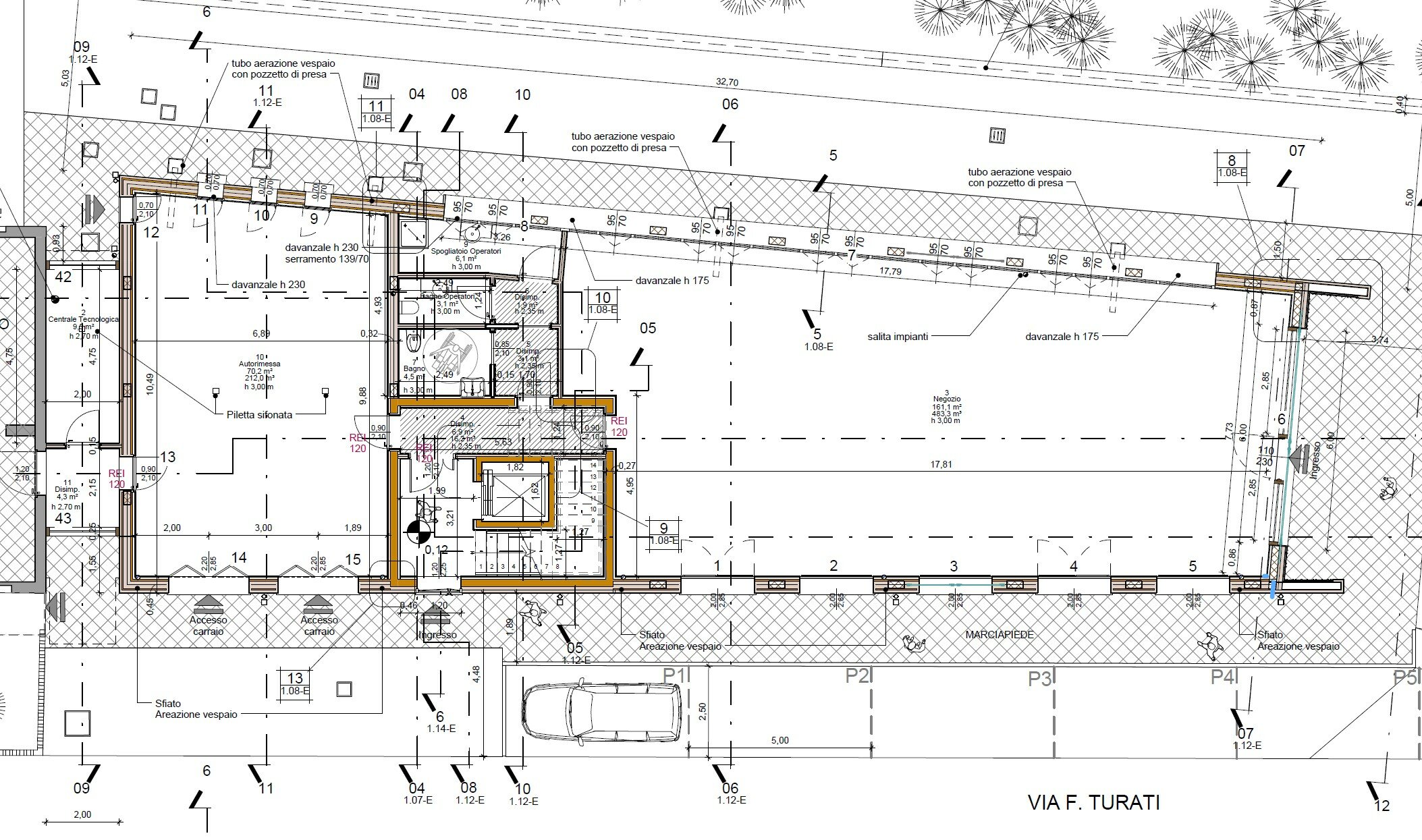
Sotto il profilo strutturale, l'edificio è stato progettato per rispondere alla normativa sismica più restrittiva. L'immobile poggia su platea e cordoli in cemento armato. Tutte le strutture verticali ed orizzontali sono realizzate in legno, il vano scala ed ascensore ha una funzione strutturale di controvento ed è realizzato con pareti in x-lam; in alcune campate sono stati inseriti controventi in acciaio, che fungono anche da elementi di facciata. Allo scopo di prevedere spazi interni privi di pilastrature, i solai in legno raggiungono campate che superano i 9 metri di ampiezza.







Esternamente il fabbricato è rivestito con un cappotto in fibra di legno, con finitura a intonaco di calce idrata e grassello e intonachino colorato in pasta; la facciata principale è stata rivestita con listelli di legno verticali, formando una parete ventilata; soluzione ottimale anche da un punto di vista bioclimatico, in relazione all'orientamento planimetrico.












Il rivestimento in legno è realizzato con listelli di larice trattato con la tecnica del “legno cotto”; inoltre è stato previsto l’attacco a terra con zoccolatura in pietra naturale, tipo pietra di Prun.
Il fabbricato è stato progettato e realizzato conformemente alle norme vigenti relative ai luoghi di lavoro, all’accessibilità degli edifici ai disabili (D.P.R. 236/89 e s.m.i.), nonché alle normative ed ai regolamenti igienico-sanitari e comunali vigenti, in base alle specifiche destinazione d’uso.
Tra i vari vincoli presenti nell'area, si è evidenziato anche il vincolo alluvionale (la zona è stata lambita dall'ultima alluvione); ciò ha comportato specifiche soluzioni che hanno interessato la quota di imposta del fabbricato, la conformazione del vespaio, lo studio delle modalità di soccorso in relazione alla disposizione dei locali e delle aperture, le modalità di evacquazione dell'acqua in fase di ritiro dell'onda alluvionale.








Il nuovo immobile è stato concepito per essere polifunzionale e passibile di trasformazioni con cambio di destinazione d'uso.
PROGETTO:
Committente – Committente privato
Realizzazione – Anno 2014-2020
Enti finanziatori: Regione Emilia Romagna (Contributo a fondo perduto per la ricostruzione post sisma 2012)
Posizione Google maps
Progettazione e DL architettonica: Ref. Geom. Olver Zaccanti - Bicubo Architetti _Ref. Bicubo: Arch. Alessandro Beber
Progettazione e DL strutturale: Ing. Luigi Rivoli
Termotecnico: Ing. Luigi Rivoli
