L'importanza della rappresentazione in architettura
La rappresentazione è un elemento fondamentale dell'architettura. Essa permette di visualizzare e raccontare il progetto architettonico, sia in fase di progettazione che di realizzazione.
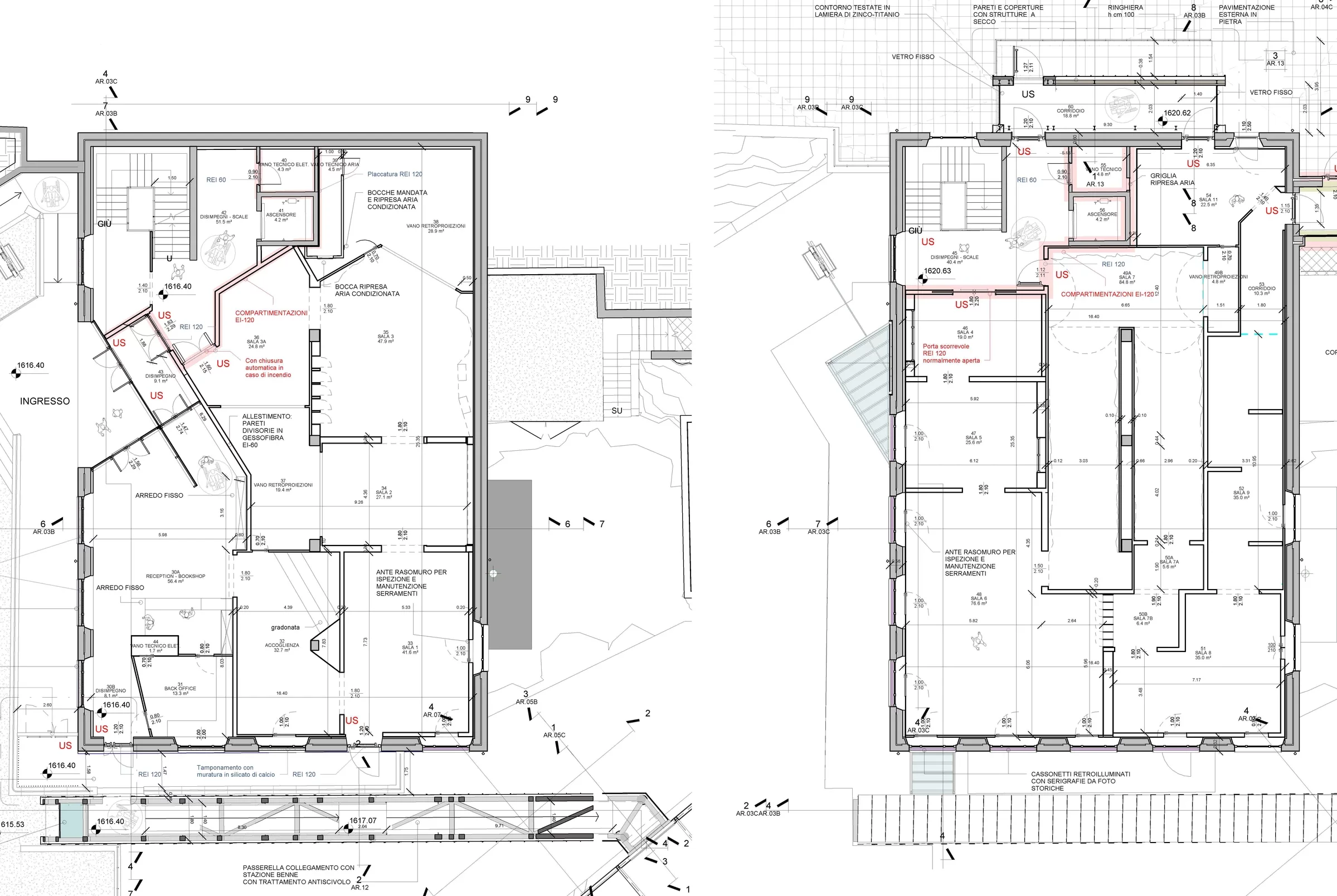
I disegni di dettaglio sono fondamentali per la corretta realizzazione dell'opera architettonica. Essi forniscono informazioni precise sulle dimensioni, le forme e i materiali da utilizzare. I disegni di dettaglio sono solitamente realizzati in scala, in modo da consentire una visione realistica del progetto.










Questi disegni sono utili anche per le imprese costruttrici, che possono utilizzarli per stimare i costi e i tempi di realizzazione dell'opera. I disegni di dettaglio possono inoltre essere utilizzati per definire i processi di produzione e montaggio.
Ad esempio, un disegno di dettaglio di un edificio può mostrare le dimensioni e le forme delle pareti, dei pavimenti, dei soffitti e delle finestre. Queste informazioni sono essenziali per gli operai che devono costruire l'edificio, in modo da garantire che venga realizzato correttamente.
I disegni in 3D consentono di visualizzare l'opera architettonica in modo tridimensionale. Essi sono particolarmente utili per comprendere la composizione spaziale del progetto e per valutare l'impatto visivo dell'edificio nell'ambiente circostante. I disegni in 3D possono essere realizzati con diverse tecniche, come la computer grafica o la modellazione fisica.
I disegni in 3D sono utili ai progettisti per analizzare le specificità trattate e meglio cominicare al committente ed alle imprese il progetto nella sua interezza e nello sviluppo dei dettagli; le imprese costruttrici, che possono utilizzarli per simulare la costruzione dell'opera e per identificare eventuali problemi. I disegni in 3D possono inoltre essere utilizzati per presentare il progetto ai committenti in modo più realistico.










Oggigiorno le ditte fornitrici sviluppano i disegni in 3D per ingegnerizzare la produzione e poter trasferire i dati grafici ai macchinari ed alle attrezzature automatizzate, che predisporranno gli elementi ed i materiali utilizzati con i corretti tagli, pronti per l'assemblaggio. Questo tipo di attività si addice particolarmente per la progettazione ed esecuzione di elementi di arredo, lo sviluppo di elementi in legno e metallo (travi, tetti, strutture), lo sviluppo di elementi o costruzioni prefabbricate, lo svluppo e produzione di oggetti di design.
Ad esempio, un disegno in 3D di un parco può mostrare la disposizione degli alberi, dei sentieri e dei laghetti. Queste informazioni possono aiutare gli operai a comprendere meglio la disposizione dell'area e a garantire che la costruzione del parco sia eseguita in modo sicuro ed efficiente.
I rendering sono immagini fotorealistiche che consentono di visualizzare l'opera architettonica in modo realistico. Essi sono realizzati con tecniche di computer grafica e possono essere utilizzati per scopi pubblicitari o per presentare il progetto ai committenti. Nella progettazione i render contribuiscono a migliorare lo studio di inserimento del progetto nell'ambiente circostante, elemento fondamentale dal punto di vista








I rendering sono utili anche per le imprese che devono realizzare gli elementi di arredo dell'opera architettonica, infatti possono aiutare a definire le dimensioni, le forme e i materiali degli arredi, in modo da garantire un'armonia complessiva con il progetto architettonico.
Ad esempio, un rendering di un interno può mostrare l'atmosfera e l'illuminazione di una stanza. Queste informazioni possono aiutare gli arredatori a scegliere i mobili e gli accessori giusti per creare un ambiente confortevole e accogliente.
In conclusione, la rappresentazione è un elemento fondamentale dell'architettura. Essa è utile sia per gli architetti, che devono comunicare il loro progetto, sia per le imprese costruttrici e quelle che devono realizzare gli elementi di arredo.








Ecco alcuni altri esempi di come la rappresentazione viene utilizzata in architettura:
I disegni di schizzo possono essere utilizzati per esplorare idee e concept creativi.
Dal progetto con modello BIM (Building Information Modeling) si possono inoltre essere prodotti modelli realistici per mezzo della stampa 3D. I modelli fisici possono essere utilizzati per valutare il progetto su scala reale.
Le fotografie e i video possono essere utilizzati per documentare il processo di progettazione e realizzazione.
Nell'ambito della progettazione fotovoltaica, le aree e gli immobili sono spesso sottoposti a vincoli ambientali, in questi casi in particolare, i render risultano importanti per rappresentare il progetto nell'ambiente, permettendo di posizionarsi in punti di vista specifici.
Per gli impianti fotovoltaici la realizzazione di un modello 3D è importante anche per effettuare lo studio degli ombreggiamenti, infatti, la vicinanza di camini, alberi, edifici, elementi architettonici, possono proiettare ombre sull'impianto, riducendone l'efficienza.








La rappresentazione è un'arte versatile che può essere utilizzata in molti modi diversi. Essa è una parte essenziale del processo di progettazione architettonica e contribuisce a garantire che gli edifici siano realizzati correttamente e in modo efficiente. Non esiste uno standard di rappresentazione, in quanto, ogni oggetto, edificio o elemento, richiede un linguaggio specifico adatto a raccontare e descrivere nel miglior modo le peculiarità del progetto per rendere le informazioni comprensibili e comunicative nei confronti dei destinatari (committente, ditta appaltarice, ditta produttrice, pubblicazioni, Ente Pubblico, ecc...).

