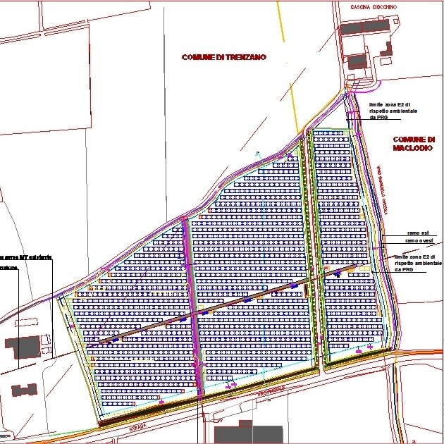
La società MEDIAPOWER Srl di Bolzano (BZ) si è rivolta noi, affidandoci il coordinamento delle pratiche amministrative, di progettazione e direzione lavori di un impianto fotovoltaico da realizzare su suolo, in area industriale di proprietà comunale, avente come finalità principale la produzione di energia elettrica da vendere alla rete pubblica.

Allo scopo di fornire un servizio completo al cliente, abbiamo lavorato in team con professionisti di fiducia con cui operiamo da molti anni per sviluppare una serie complessa di servizi in sintesi definiti di seguito:
- progettazione architettonico/ambientale esecutiva, pratiche autorizzative, amministrative, gestione autorizzazione unica provinciale e ministeriale;
- direzione lavori e coordinamento/ gestione del cantiere e tempistiche di realizzo;
- pratiche di perizie e pratiche catastali, con gestione servitù e atti notarili.




Progetto - Anno 2012
bicubo architetti - Ref. Arch. Fabio Bonetti
Collaborazioni:
Agrotecnico e Naturalista Giambattista Rivellini, Geom. Matteo Grassi
Scopri i nostri servizi nel settore fotovoltaico ed energie rinnovabili.
